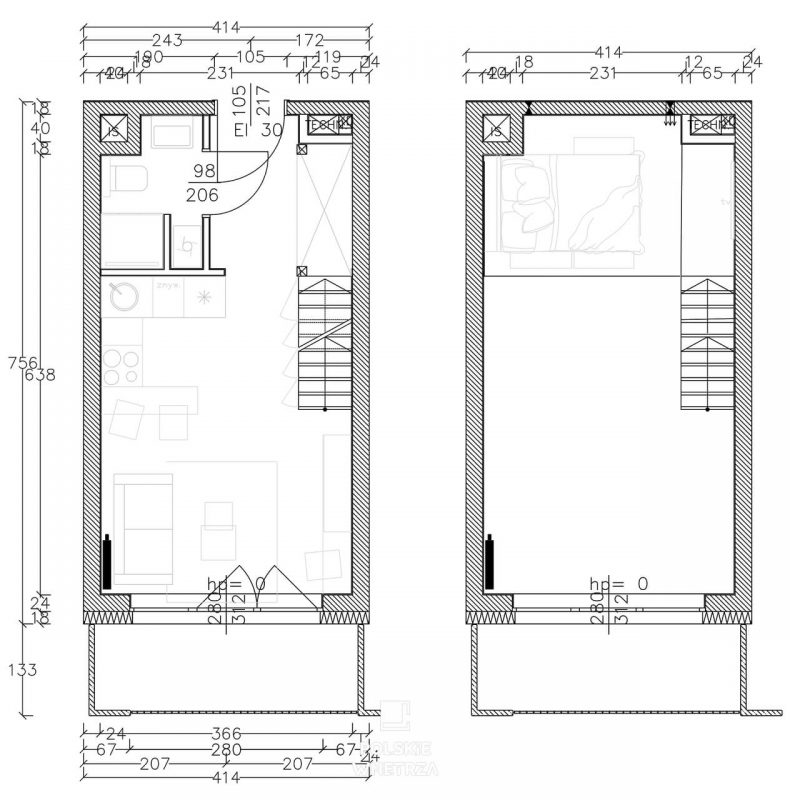
Niebanalne mieszkanie o powierzchni 25 m kw. z antresolą, zostało urządzone z myślą o uczącym się lub pracującym singlu, który żyje w biegu, a wracając do domu potrzebuje chwili relaksu. Przestrzeń w nieco młodzieżowym klimacie opiera się na graficznych akcentach w postaci linii, które współgrają z energicznymi i pobudzającymi kolorami.
Projekt autorstwa studia Wojtyczka zakłada wykorzystanie jak największej możliwej przestrzeni do przechowywania, tym samym nie zabierając miejsca do wykonywania codziennych czynności. Mieszkanie zachowało również wszystkie potrzebne do funkcjonowania strefy. W dolnej części kawalerki znajduje się wydzielona kuchnia wraz z miejscem do spożywania posiłków, która posiada pełnowymiarową lodówkę, zmywarkę i piekarnik, strefa relaksu – miejsce do spotkań z przyjaciółmi oraz wydzielone miejsce do pracy przy komputerze. Na antresoli zaaranżowano sypialnię, w której również znajduje się kilka przydatnych schowków.


































